

在電機內部產生的各類損耗最終都將變成熱量,傳給冷卻介質,使冷卻介質溫度上升。用測量電機所產生的熱量來推算電機損耗的方法,簡稱量熱法。下面本文主要根據國標量熱法測定電機的損耗和效率介紹量熱法測定電機損耗構成及各損耗求取方法。
為了對總損耗進行分類,給電機規定一個基準表面。這是一個將電機全部包在里面的基準表面,這個表面內產生的所有損耗,都通過該表面散發出去(見圖1)。
電機總損耗包括:
● 基準表面內損耗Pi;
● 基準表面外損耗Pe。

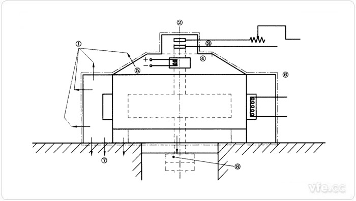
圖1:基礎表面
1——輻射至墻壁,對流至周圍空氣;2——控制裝置表面;3——勵磁;4——推力軸承冷卻器;5——冷卻空氣;6——主冷卻器;7——傳至基礎;8——傳至水輪機轉子。
基礎表面內損耗可分為兩類:

式中:
P1-——以熱量的型式由冷卻系統帶走,并可用量熱法測量的損耗。這是基準表面內損耗的主要部分。
P2——不傳遞給冷卻介質,而以傳導、對流、輻射、滲漏等形式通過基準表面散發的損耗。它占總損耗的一小部分,可以用量熱法測量,也可以用計算方法求得。
基準表面外部損耗Pe主要由下列部分的損耗組成:
a) 在基準表面外部的輔助設備損耗。
b) 在基準表面外部的軸承摩擦損耗。
電機各部溫升達到熱穩定后,冷卻介質帶走的損耗為:

式中:
P1——在基準表面內部,被冷卻介質帶走的損耗,kW ;
Cp—冷卻介質的比熱,KJ/ (Kg*K ) ;
Q—冷卻介質的流量,m3/s;
ρ——冷卻介質的密度,Kg/m3;
Δt—冷卻介質的溫升,K。
A. 由于熱傳導傳到電機基礎及軸上的損耗
熱傳導傳到電機基礎及軸上的損耗,這些損耗數量很小,可以忽略不計。
B. 開啟式通風的電機中,由于空氣動能變化而帶走的損耗
空氣動能變化而帶走的損耗,這些損耗很小,其損耗可用下式計算:

式中:
P2——冷卻空氣動能變化帶走的損耗,KW ;
Q——空氣流量,m3/s;
ρ——空氣密度,kg/m3;
V——出口風速度,m /s。
C. 電機外表面與周圍空氣對流和向廠房輻射的損耗
因為電機表面向廠房的輻射損耗數量很小,可以忽略不計。測量時,只考慮電機外表面與周圍空氣對流散熱的損耗就行。其損耗計算公式為:
式中:

P2——電機外表面散出的損耗,kW ;
A——散熱表面積,㎡;
Δt——電機外表溫度與外部環境溫度之差,K;
h—表面散熱系數,W /(㎡*K) 。
表面散熱系數h,一般數值范圍在(10-20)W /(㎡*K)之間。與空氣接觸的表面散熱系數 h 的數值,可用以下公式計算:
1. 對于外表面:

式中:
h——外表面散熱系數,W /(㎡*K);
V——環境空氣流速,m/s。
2. 對于電機外表面內側的各表面:

式中:
h——內表面散熱系數,W /(㎡*K);
V——冷卻空氣流速,m/s。
A. 在基準表面外部的輔助設備損耗
外部輔助設備只包括由被試電機供電的輔助設備,輔助設備的損耗按GB755及相應產品標準規定的試驗方法進行測量。若測試條件有困難,允許用計算值代替該項損耗的試驗值。
B. 應計入被試電機中軸承摩擦損耗
軸承損耗用量熱法測量。對于帶有水冷卻器的軸承其損耗可以用油作為冷卻介質來測量,也可以用水作為冷卻介質來測量。但因為對水的熱特性了解得比較清楚,最好在“油—水”冷卻器的水的一側測量。
上一篇:主流的電流測量技術對比
下一篇:水泵流量測量方法簡介